Egzamin Teoretyczny
#1. Urządzenie techniczne objęte dozorem technicznym może być eksploatowane na podstawie:
#2. Które z wymienionych czynności nie należą do zakresu obowiązków obsługującego UTB:
#3. Terminy przeglądów konserwacyjnych urządzeń technicznych:
#4. Dozorem technicznym nazywamy:
#5. Dozór techniczny nad urządzeniami technicznymi wykonuje:
#6. Zmiana parametrów technicznych lub zmiana konstrukcji urządzenia technicznego traktowana jest jako:
#7. Uzgodnioną naprawę lub modernizację urządzeń technicznych może wykonać:
#8. Ustawa o dozorze technicznym określa następujące formy dozoru technicznego:
#9. Decyzję zezwalającą na eksploatację urządzenia technicznego wydaje:
#10. Obsługujący urządzenie techniczne może podjąć pracę gdy:
#11. Obsługujący urządzenie techniczne może podjąć pracę gdy:
#12. W przypadku nieprzestrzegania przez eksploatującego przepisów o dozorze technicznym eksploatujący:
#13. W przypadku stwierdzenia zagrożenia dla życia lub zdrowia ludzkiego oraz mienia i środowiska inspektor:
#14. W przypadku niebezpiecznego uszkodzenia urządzenia technicznego lub nieszczęśliwego wypadku eksploatujący:
#15. Zaświadczenie kwalifikacyjne do obsługi może zostać cofnięte przez:
#16. Urządzenia techniczne nieobjęte dozorem technicznym to:
#17. Urządzenia techniczne objęte dozorem technicznym to:
#18. Niebezpieczne uszkodzenie urządzenia technicznego to:
#19. Nieszczęśliwy wypadek to:
#20. Podnoszenie i przenoszenie osób przez urządzenie techniczne przeznaczone wyłącznie do transportu ładunków wymaga:
#21. Odpowiedzialnym za zapewnienie właściwej obsługi i konserwacji urządzenia technicznego jest:
#22. Wymagane przepisami prawa przeglądy konserwacyjne wykonuje:
#23. Dziennik konserwacji urządzenia technicznego prowadzi:
#24. Badania odbiorcze przeprowadza się dla urządzeń technicznych:
#25. Badania okresowe przeprowadza się dla urządzeń technicznych objętych dozorem:
#26. Nieobecność konserwującego na badaniu urządzenia technicznego wymaga min.:
#27. Kandydat na obsługującego urządzenie techniczne musi:
#28. Obsługujący urządzenie techniczne ma obowiązek przerwać pracę gdy:
#29. Terminy przeglądów konserwacyjnych urządzenia mogą być określone:
#30. Terminy badań okresowych i doraźnych kontrolnych UTB określone są:
#31. Obowiązkiem obsługującego urządzenie techniczne jest:
#32. Urządzenie techniczne można eksploatować na podstawie:
#33. Po wykonanych czynnościach przy urządzeniu technicznym inspektor sporządza:
#34. Naprawę i modernizację urządzenia technicznego wykonuje:
#35. Bezpośrednio odpowiedzialnym za bezpieczną eksploatację urządzenia technicznego jest:
#36. Informacje dotyczące zasad bezpiecznej obsługi urządzenia są zawarte w:
#37. W ramach czynności przed rozpoczęciem pracy obsługujący:
#38. Zaświadczenia kwalifikacyjne do obsługi urządzeń technicznych podlegających dozorowi technicznemu wydaje:
#39. Przeciążanie UTB w trakcie pracy:
#40. Badania doraźne eksploatacyjne wykonuje się m.in.:
#41. Obowiązki obsługującego określone są:
#42. Badania okresowe urządzenia technicznego są wykonywane przez:
#43. Jednostką dozoru technicznego jest:
#44. Zaświadczenia kwalifikacyjne uprawniające do obsługi urządzeń technicznych ważne są na terenie:
#45. Obowiązek stosowania środków ochrony indywidualnej przez operatorów urządzeń technicznych wynika z:
#46. Zgodnie z rozporządzeniem Rady Ministrów w sprawie rodzajów urządzeń technicznych podlegających dozorowi technicznemu przepisom dozoru technicznego podlegają:
#47. Instrukcja eksploatacji może nie zawierać:
#48. Księga rewizyjna urządzenia musi zawierać:
#49. Decyzja wydana przez UDT:
#50. Do egzaminu sprawdzającego kwalifikacje może przystąpić osoba, która:
#51. Po zakończonym badaniu technicznym z wynikiem pozytywnym inspektor UDT:
#52. Zaświadczenia kwalifikacyjne:
#53. Dokonujący przeróbek urządzenia technicznego bez uzgodnienia z organem właściwej jednostki dozoru technicznego:
#54. Kto dopuszcza do eksploatacji urządzenie techniczne bez ważnej decyzji zezwaląjącej na eksploatację:
#55. Instrukcja eksploatacji to:
#56. Zaświadczeń kwalifikacyjnych do obsługi nie wymaga się:
#57. Osoba posiadająca zaświadczenia kwalifikacyjne może obsługiwać:
#58. Obowiązkiem obsługującego urządzenie techniczne jest:
#59. Zaświadczenie kwalifikacyjne do obsługi urządzeń technicznych są:
#60. Obsługujący który jest świadkiem wypadku ma obowiązek:
#61. Obsługującemu nie wolno:
#62. Formami dozoru technicznego są:
#63. Podnoszenie osób urządzeniami, które zostały zaprojektowane i wykonane wyłącznie do podnoszenia ładunków:
#64. Podnoszenie ładunków za pomocą dwóch lub więcej UTB:
#65. Przebywanie osób pod ładunkiem przenoszonym jest:
#66. Przenoszenia ładunków nad osobami jest:
#67. Zaświadczenia kwalifikacyjne do obsługi urządzeń technicznych podlegających dozorowi technicznemu wydaje:
#68. Komisja egzaminacyjna powiadamia osobę zainteresowaną o wyniku egzaminu:
#69. Dziennik konserwacji powinien być prowadzony:
#70. Instrukcja stanowiskowa:
#71. Po upływie terminu ważności zaświadczenia kwalifikacyjnego do obsługi urządzenia obsługujący:
#72. Przedłużenie ważności zaświadczenie kwalifikacyjnego następuje:
#73. Udźwig UTB to parametr urządzenia bezpośrednio związany z:
#74. Masa netto 1000 I wody wynosi ok:
#75. Masa ładunku składającego się z 40 opakowań po 25 kg każdy wynosi:
#76. Masa 60 kartonów po 20 kg każdy wynosi:
#77. Masę podnoszonego ładunku można określić na podstawie:
#78. Informacja dotycząca udźwigu urządzenia może być zawarta:
#79. Prawidłowe określenie jednostki udźwigu to:
#80. Które z elementów nie wchodzą w skład układu hydraulicznego wózka jezdniowego podnośnikowego?
#81. Zamek hydrauliczny zapewnia ochronę przed:
#82. Elementem przekształcającym ciśnienie oleju hydraulicznego w ruch mechaniczny jest:
#83. Elementem wytwarzającym ciśnienie w układzie hydraulicznym wózka jezdniowego podnośnikowego jest:
#84. Zawór przelewowy instalowany w układzie hydraulicznym wózków jezdniowych podnośnikowych ma za zadanie:
#85. Bezpieczny sposób sprawdzenia działania zaworu przelewowego przeprowadza się:
#86. Rozdzielacz hydrauliczny instalowany jest w układzie w celu:
#87. Elementem wykonawczym w układzie hydraulicznym wózka jezdniowego podnośnikowego jest:
#88. Elementem chroniącym układ hydrauliczny przed nadmiernym wzrostem ciśnienia jest:
#89. Zawór zwrotno-dławiący montowany w układzie podnoszenia wózka jezdniowego podnośnikowego ma na celu:
#90. Zawór bezpieczeństwa w układzie hydraulicznym wózka jezdniowego podnośnikowego
#91. W przypadku wzrostu ciśnienia nadmiar oleju odprowadzany jest:
#92. Kryteria i warunki poprawnego wykonania prób układu hydraulicznego określa:
#93. Akumulatory w elektrycznym wózku podnośnikowym:
#94. Parametry podane przez producenta na tabliczce znamionowej akumulatorów to:
#95. Wyłącznik bezpieczeństwa STOP jest:
#96. Wyłącznik bezpieczeństwa STOP:
#97. Jakiego rodzaju ogumienie stosowane jest w wózkach jezdniowych podnośnikowych:
#98. Kto decyduje o rodzaju i wielkości opon zastosowanych w wózku:
#99. Graniczne zużycie opon superelastycznych (w przypadku braku innych wytycznych) to:
#100. Jaki rodzaj zużycia wyklucza opony pełne z dalszej eksploatacji:

#101. Świecąca się kontrolka ciśnienia oleju może świadczyć o:

#102. Oznaczenie przedstawione na rysunku znajduje się na dźwigni:

#103. Widząc świecącą się kontrolkę operator:

#104. Dźwignia oznaczona poniższym piktogramem po wychyleniu przez operatora do przodu spowoduje:

#105. Dźwignia oznaczona poniższym piktogramem po wychyleniu przez operatora spowoduje:
#106. Wózki jezdniowe podnośnikowe czołowe z fotelem dla operatora musza być wyposażone w:
#107. Hamowanie jazdy wózka prowadzonego może być realizowane przez:
#108. W skład układu mechanizmu podnoszenia wchodzi
#109. Wózki jezdniowe podnośnikowe czołowe z fotelem dla operatora mogą być wyposażone w maszt typu:
#110. Jakie elementy bezpieczeństwa chronią operatora w przypadku utraty stateczności wózka podnośnikowego czołowego?
#111. Jakie elementy maja wpływ na stateczność wózka podnośnikowego czołowego?
#112. Do zasilania wózków podnośnikowych spalinowych stosowane są butle gazowe:
#113. W wózkach podnośnikowych łańcuch mechanizmu podnoszenia jest:

#114. Oznaczenie na poniższym rysunku przedstawia:

#115. Oznaczenie na poniższym rysunku przedstawia:

#116. Oznaczenie na poniższym rysunku przedstawia:

#117. Oznaczenie na poniższym rysunku przedstawia:

#118. Zapalona lub migająca lampka kontrolna:

#119. Pracując wózkiem z osprzętem wymiennym operator powinien:
#120. Osprzęt wymienny może być zainstalowany do wózka przez:
#121. Jaki wpływ na udźwig wózka ma zamontowany dodatkowy osprzęt wymienny:
#122. Po montażu osprzętu wymiennego przewidzianego przez wytwórcę wózka:
#123. Dźwignia oznaczona poniższym piktogramem, po wychyleniu przez operatora powoduje:
#124. Praca wózkiem z zamontowanymi przedłużkami do wideł jest dozwolona w przypadku gdy:
#125. Zabezpieczenie elektryczne montowane na zakończeniu dyszla wózka jezdniowego prowadzonego to:
#126. Który z elementów wyposażenia zabezpiecza przed uruchomieniem urządzenia przez osoby niepowołane?
#127. Cecha 1500 x 500 znajdująca się na widle nośnej oznacza:
#128. Maksymalny ładunek jaki można podnieść na parze wideł oznaczonych 2500 x 500 każda wynosi:
#129. Praca wózkiem jezdniowym podnośnikowym ze zbyt niskim poziomem oleju w układzie hydraulicznym może objawiać się
#130. ’Skokowy’ ruch mechanizmu podnoszenia do góry może być spowodowany:
#131. Nieszczelność w układzie hydraulicznym wózka jezdniowego podnośnikowego może się objawiać:
#132. Gęstość oleju hydraulicznego w temperaturze ujemnej
#133. Stan poziomu oleju w układzie hydraulicznym operator sprawdza
#134. O ile wytwórca nie określi inaczej, maksymalne odchylenie od pionowego położenia masztu obciążonego ciężarem nominalnym, spowodowane wewnętrznym przeciekiem w układzie wychyłu nie powinno przekroczyć:
#135. O ile wytwórca nie określi inaczej, składowa opadania mechanizmu podnoszenia wózka o udźwigu do 10 t obciążonego ciężarem nominalnym nie powinna przekroczyć:
#136. O ile wytwórca nie określi inaczej, składowa opadania mechanizmu podnoszenia wózka o udźwigu powyżej 10 t obciążonego ciężarem nominalnym nie powinna przekroczyć:
#137. Optymalne obciążenie potrzebne do przeprowadzenia próby szczelności wewnętrznej układu hydraulicznego wynosi
#138. O ile wytyczne producenta nie stanowią inaczej, minimalna wysokość na jaką należy podnieść ładunek podczas próby szczelności wewnętrznej układu wychyłu masztu wynosi
#139. Sprawdzenie w bezpieczny sposób działania zaworu przelewowego należy wykonać
#140. Sprawdzenie układu hydraulicznego w wózkach podnośnikowych obejmuje:
#141. Sprawdzenie poprawności działania dźwigni sterowniczych należy wykonać
#142. Zakres przeprowadzonych prób wózków jezdniowych podnośnikowych wyposażonych w hydrauliczny osprzęt dodatkowy obejmuje:
#143. Akumulatory kwasowe można ładować
#144. Pomieszczenie, w którym odbywa się ładowanie akumulatorów wózka
#145. Obowiązkiem operatora wózków jezdniowych podnośnikowych jest:
#146. Osoba dokonująca wymiany rozładowanych akumulatorów powinna:
#147. Łącznik bezpieczeństwa 'STOP’ służy do
#148. W przypadku stwierdzenia sytuacji niebezpiecznej operator wózka ma obowiązek:
#149. Sprawdzenie poprawności działania łącznika bezpieczeństwa STOP należy wykonać
#150. Graniczne wartości zużycia ogumienia zawiera
#151. Ciśnienie w oponach powinno być dostosowane do
#152. Nierówne ciśnienie w oponach na jednej osi może spowodować
#153. Wpływ na przyspieszone zużycie opon pneumatycznych ma:
#154. Nierównomierne zużycie opon pełnych znajdujących się na wspólnej osi
#155. Ocenę stanu technicznego ogumienia przeprowadza:
#156. W przypadku stwierdzenia uszkodzeń mechanicznych ogumienia, mających wpływ na bezpieczna eksploatacje, operator wózka
#157. Operator po zauważeniu podczas jazdy palącej się lampki kontrolnej ciśnienia oleju silnika powinien:
#158. Po zakończeniu pracy operator powinien
#159. Sprawne dźwignie sterujące
#160. Opis próby sprawdzenia poprawności działania hamulca zasadniczego opisuje
#161. Informacje dotyczące sposobu sprawdzania poprawności działania hamulca pomocniczego są zawarte w
#162. Podczas próby hamulca zasadniczego maszt powinien być w pozycji
#163. Próbę hamulca zasadniczego należy przeprowadzać
#164. Jeżeli w czasie próby hamulca pomocniczego operator uzna, ze jego działanie jest nieprawidłowe powinien
#165. W przypadku stwierdzenia awarii układu hamulcowego operator powinien
#166. W przypadku stwierdzenia wycieku płynu hamulcowego, operator powinien
#167. W przypadku stwierdzenia niewłaściwego działania hamulca pomocniczego, operator:
#168. Hamulec zasadniczy należy sprawdzać jadać wózkiem podnośnikowym i hamując:
#169. Operator powinien przeprowadzić sprawdzenie hamulców:
#170. Schodząc z fotela operatora, obsługujący wózek powinien:
#171. Zakres czynności kontrolnych masztu wózka podnośnikowego obejmuje:
#172. Podczas jazdy wózkiem podnośnikowym z ładunkiem na widłach należy:
#173. Ładunek należy transportować
#174. Podczas zjazdu z pochyłej rampy wózkiem czołowym podnośnikowym wraz z ładunkiem, operator
#175. Podczas wjazdu na pochyła rampę wózkiem jezdniowym podnośnikowym z ładunkiem ograniczającym widoczność, operator
#176. Poruszanie się wózkiem w poprzez pochyłej rampy jest:
#177. Poruszając się wózkiem z ładunkiem ograniczającym widoczność operator powinien:
#178. Podczas jazdy wózkiem jezdniowym podnośnikowym z ładunkiem należy
#179. Wylot zaworu butli gazowej powinien być skierowany
#180. Szczelność instalacji gazowej sprawdza się przy pomocy
#181. Eksploatacja wózka jezdniowego w temperaturze poniżej -10˚C
#182. Eksploatacja wózka jezdniowego w temperaturze powyżej 30˚C

#183. W oparciu o tabele określ jakie maksymalne obciążenie może przenieść gniazdo ładunkowe regału

#184. W oparciu o tabelę, określ na które najwyższe gniazdo ładunkowe podasz towar dysponując wózkiem o maksymalnej wysokości podnoszenia 2100 mm
#185. Odstawiając ładunek na regał magazynowy operator powinien znać:
#186. Podczas transportu ładunków wielkogabarytowych operator powinien:
#187. Na co powinien zwrócić uwagę operator podczas wymiany baterii trakcyjnych?
#188. Przyczyna utraty stateczności wózka może być
#189. Dopuszczalna prędkość jazdy wózka jest określona:
#190. Przed rozpoczęciem pracy wózkiem należy sprawdzić funkcjonowanie
#191. Po zamontowaniu dodatkowego osprzętu wymiennego należy:
#192. Przed wjazdem wózkiem na rampę załadowcza operator powinien sprawdzić
#193. Podczas jazdy wózkiem podnośnikowym należy
#194. Gdzie znajduje się informacja dotycząca udźwigu wózka?
#195. Przed rozpoczęciem pracy wózkiem należy
#196. Praca wózka z koszem do podnoszenia osób zakładanym na widły:
#197. W przypadku kiedy wózek traci stateczność, operator
#198. W chwili wywracania się wózka należy
#199. Wózek może stracić stateczność na skutek:
#200. Jeżeli instrukcja wózka nie stanowi inaczej, następujące w toku eksploatacji maksymalne wydłużenie łańcucha nośnego może wynosić
#201. Jeżeli instrukcja wózka nie stanowi inaczej, dopuszczalna ilość pękniętych płytek łańcucha nośnego (konstrukcji Flyera) wynosi:
#202. Jeżeli instrukcja wózka nie stanowi inaczej, minimalna dopuszczalna grubość poziomej części wideł zmierzona w pobliżu ich naroża (piety) wynosi
#203. Jeżeli instrukcja wózka nie stanowi inaczej, minimalna dopuszczalna grubość poziomej części wideł zmierzona w pobliżu ich naroża (piety) wynosi
#204. Jeżeli instrukcja wózka nie stanowi inaczej, minimalna dopuszczalna grubość poziomej części wideł zmierzona w pobliżu ich naroża (piety) wynosi
#205. Jeżeli instrukcja wózka nie stanowi inaczej, minimalna dopuszczalna grubość poziomej części wideł zmierzona w pobliżu ich naroża (piety) wynosi
#206. Jeżeli instrukcja wózka nie stanowi inaczej, maksymalne dopuszczalne rozgięcie widły względem wartości oryginalnej (zwykle 90 stopni), wynosi
#207. Sprawdzenie poprawności działania układu hydraulicznego w wózkach ze zmiennym wysięgiem obejmuje min.
#208. Minimalna bezpieczna odległość pracy wózka przy wykopie uzależniona jest od:

#209. Przedstawiony rysunek oznacza
#210. Urządzeniem zabezpieczającym wózek ze zmiennym wysięgiem przed wywróceniem jest
#211. Poprawnie działający ogranicznik obciążenia w wózkach ze zmiennym wysięgiem powoduje:
#212. W przypadku awarii układu hydraulicznego przy podniesionej kabinie i braku możliwości awaryjnego opuszczenia kabiny operator powinien
#213. W przypadku awarii wózka, przy podniesionej kabinie operator powinien:
#214. Urządzeniem zabezpieczającym operatora przed przygnieceniem lub wypadnięciem instalowanym w wózkach z operatorem podnoszonym wraz z ładunkiem może być:
#215. Elementem mającym na celu zapewnienie prawidłowej pozycji obsługującego wózek z operatorem podnoszonym wraz z ładunkiem, może być:
#216. Zabezpieczenia elektryczne charakterystyczne dla wózka z operatorem podnoszonym wraz z ładunkiem to:

#217. W oparciu o przedstawiony diagram udźwigu i rysunek określ maksymalną bezpieczna wysokość podnoszenia ładunku pobranego od strony A

#218. W oparciu o przedstawiony diagram udźwigu i rysunek określ maksymalna bezpieczna wysokość podnoszenia ładunku pobranego od strony B

#219. W oparciu o przedstawiony diagram udźwigu i rysunek określ maksymalna bezpieczna wysokość podnoszenia ładunku pobranego od strony A

#220. W oparciu o przedstawiony diagram udźwigu i rysunek określ maksymalna bezpieczna wysokość podnoszenia ładunku pobranego od strony B

#221. W oparciu o przedstawiony diagram udźwigu i rysunek określ maksymalna bezpieczna wysokość podnoszenia ładunku pobranego od strony A
#222. W oparciu o przedstawiony diagram udźwigu i rysunek określ maksymalna bezpieczna wysokość podnoszenia ładunku pobranego od strony B

#223. W oparciu o przedstawiony diagram udźwigu i rysunek określ maksymalna bezpieczna wysokość podnoszenia ładunku pobranego od strony A

#224. W oparciu o przedstawiony diagram udźwigu i rysunek określ maksymalna bezpieczna wysokość podnoszenia ładunku pobranego od strony B

#225. W oparciu o przedstawiony diagram udźwigu oraz rysunek określ maksymalna bezpieczna wysokość podnoszenia ładunku pobranego z kierunku A

#226. W oparciu o przedstawiony diagram udźwigu oraz rysunek określ maksymalna bezpieczna wysokość podnoszenia, ładunku pobranego z kierunku A

#227. W oparciu o przedstawiony diagram udźwigu oraz rysunek wskaz, na hory regał lub regały można postawić ładunek

#228. W oparciu o przedstawiony diagram udźwigu oraz rysunek wskaz, na który regał lub regały można postawić ładunek

#229. W oparciu o przedstawiony diagram udźwigu oraz rysunek wskaz, na hory regał lub regały można postawić ładunek

#230. W oparciu o przedstawiony diagram udźwigu oraz rysunek określ maksymalna bezpieczna wysokość podnoszenia, ładunku pobranego z kierunku A

#231. W oparciu o przedstawiony diagram udźwigu oraz rysunek określ maksymalna bezpieczna wysokość podnoszenia, ładunku pobranego z kierunku B

#232. W oparciu o przedstawiony diagram udźwigu oraz rysunek określ maksymalna bezpieczna wysokość podnoszenia, ładunku pobranego z kierunku A

#233. W oparciu o przedstawiony diagram udźwigu oraz rysunek określ maksymalna bezpieczna wysokość podnoszenia, ładunku pobranego z kierunku B

#234. W oparciu o przedstawiony diagram udźwigu określ maksymalny udźwig wózka na wysokości 6 m

#235. W oparciu o przedstawiony diagram udźwigu określ maksymalny udźwig wózka na wysokości 6,7 m

#236. W oparciu o przedstawiony diagram udźwigu określ maksymalna masę ładunku, o wymiarach podstawy 1,6 m x 1,6 m

#237. W oparciu o przedstawiony diagram udźwigu określ maksymalna masę ładunku, o wymiarach podstawy 2 m x 2 m

#238. W oparciu o przedstawiony diagram udźwigu oraz rysunek określ maksymalną masę ładunku pobranego od strony B

#239. W oparciu o przedstawiony diagram udźwigu oraz rysunek określ maksymalną masę ładunku pobranego od strony A

#240. W oparciu o przedstawiony diagram udźwigu oraz rysunek określ maksymalną masę ładunku pobranego od strony B

#241. W oparciu o przedstawiony diagram udźwigu oraz rysunek określ maksymalną masę ładunku, jaką można bezpiecznie podnieść pobierając ładunek od strony A

#242. W oparciu o przedstawiony diagram udźwigu oraz rysunek określ maksymalną masę ładunku, jaką można bezpiecznie podnieść pobierając ładunek od strony A

#243. W oparciu o przedstawiony diagram udźwigu oraz rysunek określ maksymalną masę ładunku, jaką można bezpiecznie podnieść pobierając ładunek od strony B

#244. W oparciu o przedstawiony diagram udźwigu określ maksymalny udźwig wózka, podnoszącego ładunek na wysokość 3000 mm

#245. W oparciu o przedstawiony diagram udźwigu określ maksymalny udźwig wózka, podnoszącego ładunek na wysokość 4000 mm

#246. W oparciu o przedstawiony diagram udźwigu określ maksymalny udźwig wózka, podnoszącego ładunek na wysokość 5000 mm

#247. W oparciu o przedstawiony diagram udźwigu oraz rysunek określ maksymalną masę ładunku jaką można bezpiecznie podnieść na wysokość 4000 mm, pobierając od strony B

#248. W oparciu o przedstawiony diagram udźwigu oraz rysunek określ maksymalną masę ładunku jaką można bezpiecznie podnieść na wysokość 4000 mm, pobierając od strony A

#249. W oparciu o przedstawiony diagram udźwigu oraz rysunek określ maksymalną masę ładunku, pobranego od strony B

#250. W oparciu o przedstawiony diagram udźwigu oraz rysunek określ maksymalną masę ładunku, pobranego od strony A

#251. W oparciu o przedstawiony diagram udźwigu oraz rysunek określ maksymalną masę ładunku, pobranego od strony A

#252. W oparciu o przedstawiony diagram udźwigu oraz rysunek określ maksymalną masę ładunku, pobranego od strony B

#253. W oparciu o przedstawiony diagram udźwigu oraz rysunek określ maksymalną masę ładunku, pobranego od strony A

#254. W oparciu o przedstawiony diagram udźwigu oraz rysunek określ maksymalną masę ładunku, pobranego od strony B

#255. Na podstawie diagramu określ na jaka maksymalną wysokość można podnieść ładunek o masie 4,0 t

#256. Na podstawie diagramu określ na jaka maksymalną wysokość można podnieść ładunek o masie 3,0 t

#257. Na podstawie diagramu określ na jaka maksymalną wysokość można podnieść ładunek o masie 3t

#258. Na podstawie diagramu określ maksymalny wysięg dla ładunku 1,6 t

#259. Na podstawie diagramu określ maksymalny wysięg dla ładunku 4,0 t

#260. Na podstawie diagramu określ jaki ładunek można podać na odległość 5 m

#261. Na podstawie diagramu, parametry wózka to

#262. Na podstawie diagramu określ na jaka maksymalną wysokość można podnieść ładunek o masie 3,0 t

#263. Na podstawie diagramu określ maksymalny wysięg dla ładunku 4,0 t

#264. Na podstawie diagramu określ na jaka maksymalną wysokość można podnieść ładunek o masie 1,5 t

#265. Na podstawie diagramu określ maksymalny wysięg dla ładunku 1,5 t

#266. Zgodnie z podanym diagramem udźwigu w sytuacji jak na rysunku operator może

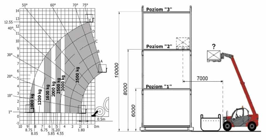
#267. Ile może wynosić masa podnoszonego ładunku w przypadku, gdy zgodnie z podanym diagramem udźwigu w sytuacji jak na rysunku operator ma za zadanie odłożyć ładunek na poziomie „2”

#268. Maksymalna wysokość podnoszenia ładunku o masie 3,5 t wynosi

#269. Maksymalna wysokość podnoszenia ładunku o masie 2,5 t wynosi

#270. Zgodnie z podanym diagramem maksymalny wysięg ładunku o masie 1,2 t wynosi

#271. Ile może wynosić masa podnoszonego ładunku w przypadku, gdy zgodnie z podanym diagramem udźwigu w sytuacji jak na rysunku operator ma za zadanie odłożyć ładunek na poziomie „2”

#272. Na podstawie diagramu parametry wózka to:

#273. Na podstawie diagramu określ maksymalny wysięg dla ładunku 2,0 t

#274. Na podstawie diagramu określ maksymalny wysięg dla ładunku 2,0 t

#275. Na podstawie diagramu określ maksymalny wysięg dla ładunku 2,5 t




